Продаж двокімнатна квартира 65,5 м2 ЖК Причал 8 Осокорки (№ 213-233-667)
Ціна: 82 000 $

Адреса: Канальна вул., 8Б, Київ, Дарницький, Позняки
Характеристики
| Ціна: | 82 000 $ |
|---|---|
| № об'єкта: | 213-233-667 |
| Кімнат: | 2 розд |
| Поверх: | 2 / 24 ліфт |
| Площа: | 65.5 / - / 18.5 м2 |
| Санвузол: | 1 |
| Додатково: | новобудова |
Опис
Пропонується до продажу двокімнатна квартира в новобудові ЖК 'Причал 8' від компанії 'Інтергал-Буд'. Комплекс розташований на вулиці Гліба Бабіча (колишня назва – Канальна), 8-Б, у розвиненому мікрорайоні Києва на березі озера Корольок.
Зручна транспортна розв'язка на правий берег.
Будинок «КОМФОРТ +».
Поруч облаштована набережна біля озера Корольок.
Закрита територія комплексу з системою охорони.
Будинок з власною котельнею, генераторами, підземним паркінгом, швидкісними ліфтами.
Автономне постачання води з артезіанської скважини.
Основні характеристики квартири:
Квартира двостороння.
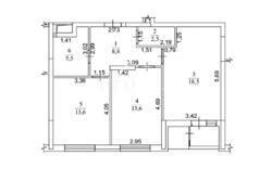
2й поверх. Загальна площа: 65,5 м?
Площа кухні: 18,5 м?
Кількість кімнат: 2
Планування: Роздільна
Санвузол: Роздільний
Тип міжквартирних стін: Кератерм
Оздоблення та стан:
Після будівельників (машинна штукатурка).
Пожежна сигналізація
Балкон розділений на дві частини
Особливості комплексу:
Комплекс розташований у спокійному районі, обмеженому від галасливих трас і центрів міста. У межах комплексу є всі необхідні зручності для мешканців, включаючи продуктові магазини, кафе, спортивні та дитячі майданчики.
Комплекс має власний пляж з лежаками, зонами барбекю і альтанками.
Поруч знаходяться магазини 'Сільпо', 'Novus', 'Ашан', ТРЦ RIVER MALL та ТРЦ RIVE GAUCHE.
Зручний доступ до Дарницького мосту забезпечує швидкий виїзд до будь-якої частини правого берега Києва.
До центру міста можна дістатися на автомобілі за 10-15 хвилин, а зупинка громадського транспорту розташована під будинком.
Не втрачайте свій шанс-жити в комфорті.
Право власності менше 3 р., податки на покупцеві.
Агенція нерухомості 'ProДім'
Працюючи з нами, ви отримуєте лише перевірене житло за адекватною ціною.
Підтримка на всіх етапах угоди.
Ми гарантуємо, що ви залишитеся задоволені співпрацею!
Комісія АН 'Pro Дім' 4%
















